$3,500,000
1,286
SQ FT
$2,722
SQ/FT
200 Hayes Avenue
@ Lean - 12 - Blossom Valley, San Jose
- 3 Bed
- 1 Bath
- 4 Park
- 1,286 sqft
- San Jose
-
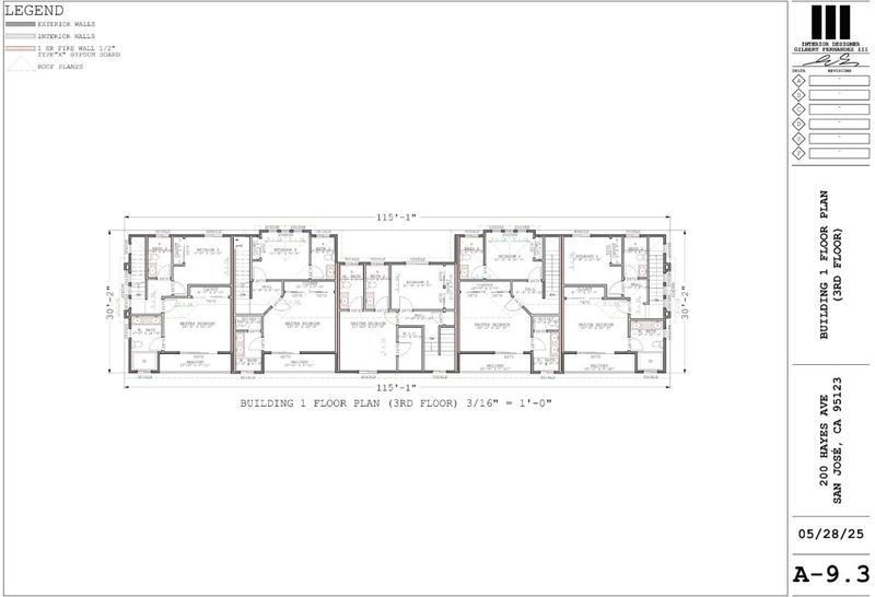
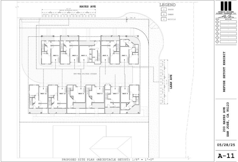
Located in a convenient South San Jose neighborhood with access to local schools and nearby shopping and transportation, 200 Hayes Ave offers a well-positioned residential development opportunity. The project proposes 11 townhome units across two three-story buildings (5 units in one building and 6 units in the other) arranged around a private internal drive aisle with individual garage access. The architectural and site plans have been prepared, and the project is ready for planning hearing, presenting a near-term development opportunity in a high-demand housing market.
- Days on Market
- 0 days
- Current Status
- Active
- Original Price
- $3,500,000
- List Price
- $3,500,000
- On Market Date
- Mar 5, 2026
- Property Type
- Single Family Home
- Area
- 12 - Blossom Valley
- Zip Code
- 95123
- MLS ID
- ML82037234
- APN
- 690-29-001
- Year Built
- 1957
- Stories in Building
- 1
- Possession
- Unavailable
- Data Source
- MLSL
- Origin MLS System
- MLSListings, Inc.
Summit Public School: Tahoma
Charter 9-12 Coed
Students: 379 Distance: 0.2mi
Oak Grove High School
Public 9-12 Secondary
Students: 1766 Distance: 0.3mi
Miner (George) Elementary School
Public K-6 Elementary
Students: 437 Distance: 0.4mi
Hayes Elementary School
Public K-6 Elementary
Students: 592 Distance: 0.6mi
Anderson (Alex) Elementary School
Public K-6 Elementary
Students: 514 Distance: 0.7mi
Davis (Caroline) Intermediate School
Public 7-8 Middle
Students: 596 Distance: 0.8mi
- Bed
- 3
- Bath
- 1
- Stall Shower
- Parking
- 4
- Attached Garage
- SQ FT
- 1,286
- SQ FT Source
- Unavailable
- Lot SQ FT
- 18,000.0
- Lot Acres
- 0.413223 Acres
- Cooling
- Central AC
- Dining Room
- No Formal Dining Room
- Disclosures
- Natural Hazard Disclosure
- Family Room
- Separate Family Room
- Flooring
- Carpet, Vinyl / Linoleum, Hardwood
- Foundation
- Concrete Perimeter
- Heating
- Central Forced Air
- Laundry
- Inside
- Architectural Style
- Ranch
- Fee
- Unavailable
MLS and other Information regarding properties for sale as shown in Theo have been obtained from various sources such as sellers, public records, agents and other third parties. This information may relate to the condition of the property, permitted or unpermitted uses, zoning, square footage, lot size/acreage or other matters affecting value or desirability. Unless otherwise indicated in writing, neither brokers, agents nor Theo have verified, or will verify, such information. If any such information is important to buyer in determining whether to buy, the price to pay or intended use of the property, buyer is urged to conduct their own investigation with qualified professionals, satisfy themselves with respect to that information, and to rely solely on the results of that investigation.
School data provided by GreatSchools. School service boundaries are intended to be used as reference only. To verify enrollment eligibility for a property, contact the school directly.












